39 000 USD $

Аккуратная 1-комн. кв. в 5 мин ходьбы до метро, БАЙКАЛЬСКАЯ, 66/1

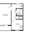
5 минут пешком до метро, 6/9 этажного панельного дома, площадь 33 / 17.11 / 7.1 м.кв., лоджия застекленная, телефон, интернет, домофон, сан/узел - раздельный, нормальный ремонт, год постройки 1982, окна во двор, развитая инфраструктура: парковка во дворе и за домом, рядом 2 заезда с МКАД, детсад во дворе, рядом школа, магазины, метро, лесопарковая зона, торг.

ID: 34555
Создано: 25/03/2012

Сергей

Зарегистрирован 25/03/2012
Активность 18/04/2012 11:47

Покупайте безопасно

  • Не платите продавцу до получения товара или услуги
  • Встречайтесь с продавцом в публичном месте
  • Проверяйте товар перед покупкой

Похожие объявления